Skip To Content

543 Frank Fleer Road

Lexington, NC 27292
  • $269,900
  • STATUS: Active
  • ON SITE: 109 Days
  • MLS #: 1191736
$269,900
  • 3
    BEDS
  • 0.55
    ACRES
  • 2
    BATHS
  • 0
    1/2 BATHS
  • 1,819
    SQFT
  • $148
    $/SQFT
Neighborhood:
Type:
Manufactured Home
Built:
2025
County:
Area:

School Information

Elementary School:
Middle School:
High School:

Description

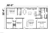
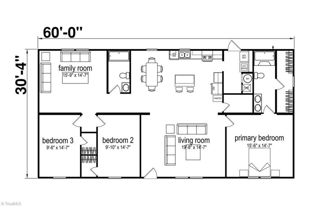
Wonderful opportunity to get a jump on this brand-new doublewide manufactured home in Southmont. 3 bedrooms, 2 baths and nice family room! Almost complete on permanent brick foundation with 8x12 covered front porch and 8x10 rear deck. Great location, just minutes to HRL!

Monthly Payment Calculator



Listing information © 2025 Triad MLS, Inc. of North Carolina. All rights reserved. The data relating to real estate for sale on this web site comes in part from the Internet Data Exchange (IDX) Program of the Triad MLS, Inc. of High Point, NC. Real estate listings held by brokerage firms other than Lewis & Clark, Realtors® are marked with the Internet Data Exchange logo or the Internet Data Exchange (IDX) thumbnail logo (the TRIAD MLS logo) and detailed information about them includes the name of the listing brokers.IDX information provided is for consumers' personal, non-commercial use and may not be used for any purpose other than to identify prospective properties consumers may be interested in purchasing. Information deemed reliable but not guaranteed. Data last updated 2025-12-07T23:30:56.94.
www.lewisclarkrealtorsgso.com/homes/167151253
Print Image

543 Frank Fleer Road Lexington, NC 27292

  • Price: $269,900
  • Status: Active
  • On Site: 109 Days
  • MLS #: 1191736
3
Beds
2
Baths
0
½ Baths
0.55
Acres
1,819
SQFT
$148
$/SQFT
2025
Built
Neighborhood:
None
County:
Davidson
Area:
Davidson
Elementary School:
Southmont
Middle School:
Central Davidson
High School:
Central Davidson
Property Description
Wonderful opportunity to get a jump on this brand-new doublewide manufactured home in Southmont. 3 bedrooms, 2 baths and nice family room! Almost complete on permanent brick foundation with 8x12 covered front porch and 8x10 rear deck. Great location, just minutes to HRL!
Exterior Features

Construction Materials Vinyl Siding Exterior Features Garden Garage Description None Parking Features DrivewayGravelNo Garage Pool Features None Pool YN No Porch YN Yes

Interior Features

Above Grade Finished Area 1819 Appliances MicrowaveDishwasherFree-Standing RangeElectric Water Heater Attic Description No Access Basement Crawl Space Basement YN No Cooling Heat Pump Fireplaces Total 0 Flooring Vinyl Full Baths Lower 0 Full Baths Main 2 Full Baths Upper 0 Half Baths Lower 0 Half Baths Main 0 Half Baths Upper 0 Heated Finished Sq Ft Main 1819 Heating Heat PumpElectric Interior Features Ceiling Fan(s)Kitchen IslandPantry Laundry Features Dryer ConnectionMain LevelWasher Hookup Primary On Main YN Yes Rooms Bedroom 2 (Main Level 14ft 7in x 9ft 10in) Den (Main Level 14ft 7in x 15ft 9in) Dining Room (Main Level 0ft 0in x 0ft 0in) Living Room (Main Level 14ft 7in x 19ft 8in) Bedroom 3 (Main Level 14ft 7in x 9ft 6in) Primary Bedroom (Main Level 14ft 7in x 15ft 6in) Laundry (Main Level 0ft 0in x 0ft 0in) Rooms Total 7 Water Heater Electric

Property Features

Association YN No Built Information New City Limits YN No Deed Restriction YN No Development Status Under Construction Fenced YN No Fencing None Heating Fuel Electric Land Description Cleared LandLevel Levels One Listing Terms CashConventionalFHA Lot Available YN No Lot Features ClearedLevel Lot Number 26-30 New Construction YN Yes Property Sub Type Manufactured Home Second LQYN No Sewer Septic Tank Special Listing Conditions Owner Sale Structure Type Manufactured House Tax Annual Amount 65 Water Source Public

Listing information © 2025 Triad MLS, Inc. All rights reserved. Listing provided courtesy of Leonard Craver Realty Inc: . Information deemed reliable but not guaranteed.


Listing information © 2025 Triad MLS, Inc. of North Carolina. All rights reserved. The data relating to real estate for sale on this web site comes in part from the Internet Data Exchange (IDX) Program of the Triad MLS, Inc. of High Point, NC. Real estate listings held by brokerage firms other than Lewis & Clark, Realtors® are marked with the Internet Data Exchange logo or the Internet Data Exchange (IDX) thumbnail logo (the TRIAD MLS logo) and detailed information about them includes the name of the listing brokers.IDX information provided is for consumers' personal, non-commercial use and may not be used for any purpose other than to identify prospective properties consumers may be interested in purchasing. Information deemed reliable but not guaranteed. Data last updated 2025-12-07T23:30:56.94.
 
https://bt-photos.global.ssl.fastly.net/triad/orig_boomver_4_1191736-2.jpg
Logo
Lewis & Clark, Realtors®
1016 N. Elm Street
Greensboro NC, 27401